
Glasriket fönster aluminium termoisolerad 3-glas
Glasriket Fönsters välisolerade aluminiumfönster som kombinerar modern design, styrka och hållbarhet för att skapa ett ljusare, mer rymligt hem. De slimmade profilerna släpper in maximalt med ljus, medan materialets väderbeständighet och återvinningsbarhet gör det till ett miljövänligt och långlivat val. Med energieffektivitet och flexibel användning är aluminiumfönster en smart investering som förenar stil, funktion och hållbarhet.






Produktpresentation: Fönster fast 1-luft i helaluminium
Glasriket Fönsters aluminiumfönster är variationerna i princip obegränsade när det gäller att skräddarsy dem till din bostad och dina behov. Fönsterna är inåtgående med en praktiskt vädringsfunktion där du öppnar ovankanten med 10 cm för vädring om du inte vill öppna hela fönstret, sido/bottenhängt med vädringsfunktion även kallat dreh-kipp funktion som gör fönstret både smidigt, praktiskt och elegant.
Du väljer själv vilken sida du vill ska vara gångjärnssidan och fönsterna utrustas med eleganta secustichandtag i borstad aluminium.
Profildesignen är enkel och stilfull med raka linjer som gör den anpassad för de flesta miljöer. En prioritet för oss har varit att presentera en tunn profil som på ett minimalistiskt sätt framhäver de glasytorna vilket sätter huset och miljön runtom i fokus.
U-värde | Isolerförmåga | prestanda
Fönster Glasriket i aluminium är en produkt som sätter en egen standard för energieffektivitet och komfort. U-värdet är låga U-värde på 0.9 W/m²K med 3 glas energikassett och det överträffar de tuffa krav som ställs på en isolerad produkt oavsett om det handlar om montage i nybyggda fastigheter som hus där krav på isolerförmåga är en viktig faktor.
Om låga U-värden och välisolerade produkter: Låga U-värden kan leda till kondensbildning på glasens utsidor, det är inget skadligt utan helt normalt. Detta inträffar eftersom värmen från insidan inte kan tränga igenom glaset för att torka upp utsidan. Faktum är att detta är ett tecken på att fönstret är välisolerat. Kondens uppstår oftast under natten vid vissa tider på året och försvinner vanligtvis på morgonen tack vare värme eller vind. Som alternativ kan vi erbjuda Antikodensglas som kraftigt reducerar risken för kodensbildning på glasen. Kontakta oss så berättar vi mer!
Måttanpassad | skräddarsy dina fönster – dina önskemål är vår standard
Anpassa enkelt dina fönster efter dina behov. Vi tillverkar all produkter utifrån din unika mall så att varje parti som lämnar vår produktion blir som du vill ha den. Mått kan anges i valfria millimetermått tänk bara på att ange karmens yttermått eftersom dessa blir det tillverkade fönstrets karmyttermått. Önskar du glasavdelande poster eller spröjs så skräddarsyr vi dina önskemål kring detta Om du har frågor kring mätning kan besöka vår guide för måttagning eller helt enkelt för råd.
Glas
3-glas är standard och glaskassetter (de sammansatta glasen) hos partiet är välisolerade och är av typen lågemissionsglas. Det är dubbla lågemissionsglas (insida / utsida) och kassetten utrustas med en varmkant som binder ihop glasen i ljusgrå nyans som standard. Mellan glasen finns helt ofarlig argongas som bidrar till att hålla den goda isolerförmågan. Glaskassetten har ett u-värde på : 0.5 W/m²K.
Kulörer
Färgsättning i standardutförande är vit kulör hos profilerna (RAL 9016) detta gäller på båda sidor av partiet. Vi vi erbjuder även lackering i valfri RAL-kulör, samma kulör på båda partiets sidor eller separata olika kulörer på insida och utsida.
Garanti
Här hittar du våra garantivillkor: https://glasriketsfonster.se/vara-garantier/
Frågor?
Det är helt naturligt. Ring, mejla eller besök oss så reder vi ut allt som är oklart. Vi hjälper dig gärna med planering och råd gällande ditt projekt. gällande ditt projekt.
| FUNKTION | Fast fönster | |
| PROFILER | Glasriket aluminium enligt detaljritningar. | |
|---|---|---|
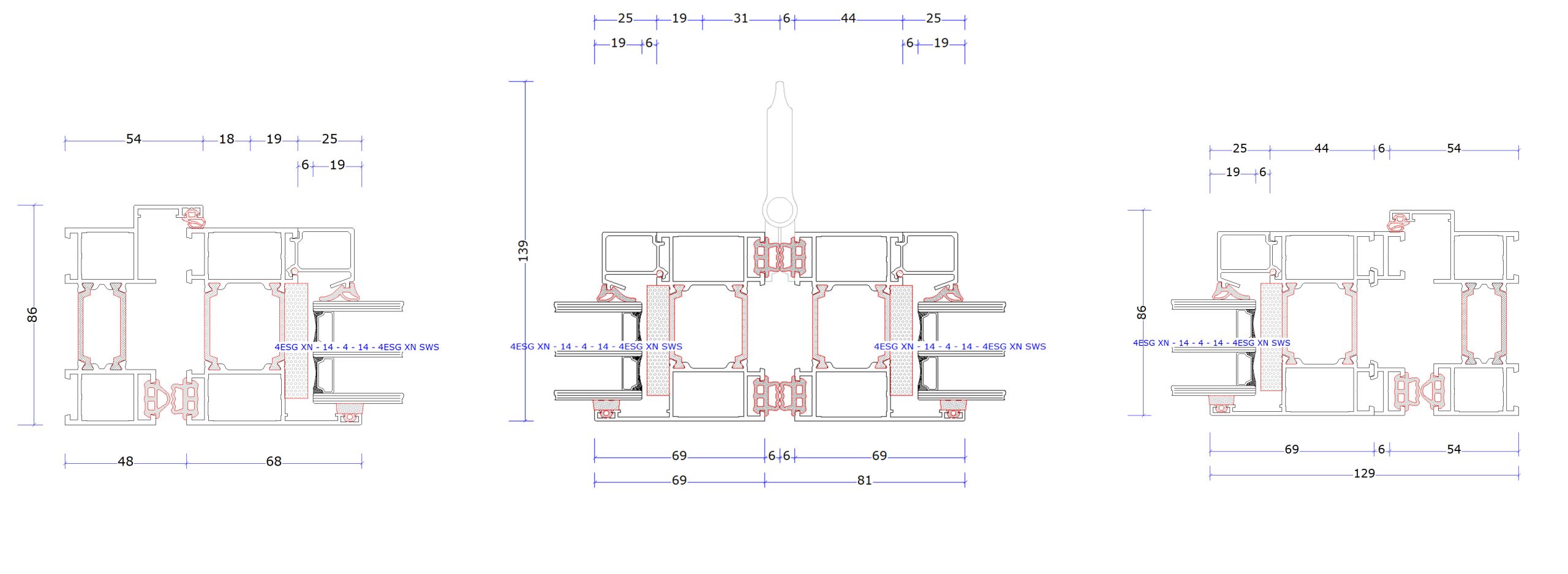
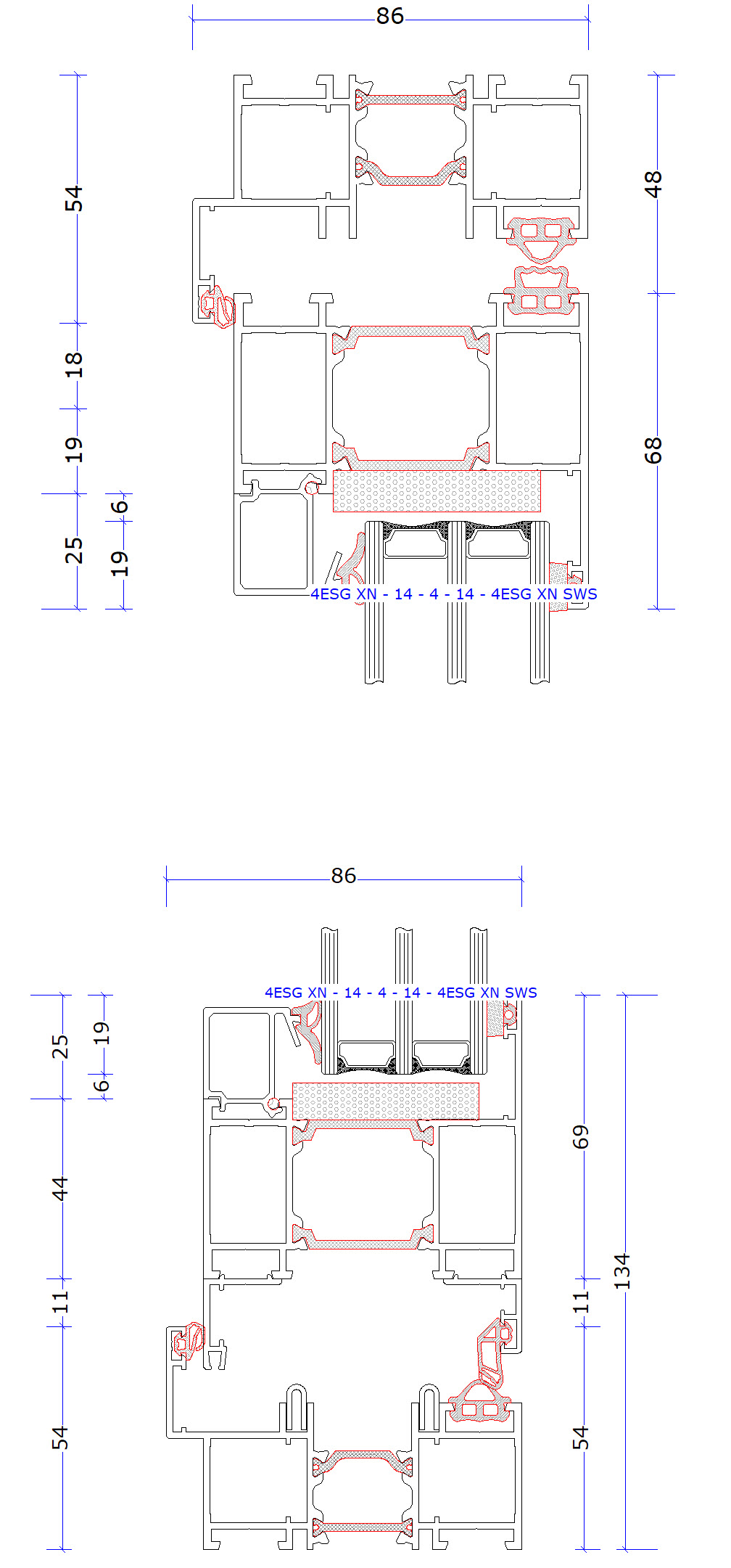
| KARMDJUP | 70 mm. | |
| PROFILHÖJD ( KARM + BÅGE ) (Mått från ytterkant profil till synligt glas) | 134 mm. | |
| TRÖSKEL | 54 mm (kan försänkas). | |
| BREDD – MIN / MAX | 380 mm / 2480 mm | |
| HÖJD – MIN / MAX | 38 mm / 2480 mm | |
| ALUMINIUM | Strängpressade aluminium framställd enligt kvalitetsstandarder: SIS 014291, SIS 014292, SIS 014293, SIS 014294, SIS 014295 som tillsammans säkerställer viktiga standarder som den tillverkade produktens egenskaper och kvalité som tillförlitliga tillverkningsprocesser. Profiler erbjuder en mycket god kombination av styrka, hållbarhet och designflexibilitet. | |
| YTBEHANDLING | Ytbehandlingen genom pulverlackering, standard ISO 9241 som säkertställer krav på ytkvalitet för aluminiumprofiler. | |
| STANDARDKULÖR | RAL 9016: | |
| LACKERINGSTEKIK | Pulverlackering | Andra standardkulörer: RAL 7016: Antracitgrå, RAL 7021: Svartgrå, RAL 7024: Grafitgrå, RAL 7035: Ljusgrå, RAL 7038: Agatgrå, RAL 7043: Trafikgrå, RAL 8019: Gråbrun, RAL 9005: Djupsvart, RAL 9006: Vitaluminium, RAL 9007: Gråaluminium |
| GLANSTAL STANDARD | 30 % | |
| TÄTNINGSLIST | Monterade Glasriket Longlife-lister (kan demonteras). Listen är svart. | |
| GLAS STANDARD | Fönster glasas med 3-glaskassett | 3-glas energiglas 48mm. Glasrikets standardglas i fönster aluminium termoisolerad: 2st härdade energiglas med argonfyllnad. Glaskassetter monteras enligt MTK:s standard. | |
| GLAS TILLVAL | Självrengörande / aktiva glas, ljudreducerande glas / ljudruta, värme- och solreducerande glas och reflekterande glas. | |
| SPRÖJS TILLVAL | Mellanglasspröjs 26 mm, fastmonterad spröjs i aluminium 25mm. | |
| VARMKANT STANDARD | Ljusgrå kulör, varmkantslist i olika kulörer tillval | |
| BRÖSTNINGAR TILLVAL | Bröstningspanel i slätt utförande. Panelen utförs med aluminiumpanel med mellanliggande polyuretanskum i 2 lager . Lackering utförs i samma kulör som partiets profiler. Minimihöjd: 400 mm. Vid bröstning på minimum 600 mm utgår krav på personsäkerhetsglas varför detta ej sitter monterat. | |
| BÅGPOSTER | Bygger 76 mm i synligt breddmått. 7Dessa är fasta genomgående poster och separerar / delar glasen i seprata kassetter / luft. | |
| HANDTAG | Hävarm i aluminium insida, borstad finish, utsida integrerat draghandtag, handtag utsida motsvarande insida finns som tillval tillsammans med låskista och cylinderlås | |
| LÅSSYSTEM TILLVAL | Mekanisk låscylinder euromodell standard insida, nyckellåsning godkänt system enligt svensk försäkringsstandard | |
| U-värde 3-glas | 0.9 W/m²K |
| Lufttäthet | Klass 4 | EN 12207 |
| Vattentäthet | Klass E | EN 12208 |
| Vindlast | Klass C5 | EN 12210 |
| LT-Värde 3-glas | 73 % |
| g-värde 3-glas | 0,53 |
| Rw (dB) 3-glas | 32(-1, -4) |
CE-certifikat

Inom EU måste alla dörrar och fönster vara CE-märkta för att få säljas. CE-märkningen intygar att produkten är tillverkad, testad och godkänd i enlighet med de europeiska standarder som gäller.
Miljöarbete
Vi arbetar aktivt och stolt med miljöfrågor. Läs gärna mer om vårt arbete för ett hållbart företagande här.

Vi arbetar enligt EU:s direktiv CSRD (Corporate Sustainability Reporting Directive) för transparenta hållbarhetsrapporter.
Guarantees of Origin (GOO) | Ursprungsgarantier
100% förnybar energi används vid tillverkning av produkterna.
85% återvunnet material används vid framställning av aluminiumprofiler.
Några av våra övriga produkter

Allmogefönster | kulturfönster
Fönster i gammaldags, äldre stil för en klassisk vacker fönsterprodukt med mycket detaljer

Vikdörrar | vikpartier
Vikbara dörrar för isolerade utrymmen i termoisolerad aluminium eller välisoerad PVC | uPVC | komposit

Fönster
Fönster för isolerade hus och fastigheter i trä, trä / aluminium, aluminium och PVC | uPVC | komposit

Dörrar
Fönsterdörrar | balkongdörrar | altandörrar isolerade hus och fastigheter.

Oisolerat kontor och butik
Glasade partier för användning i kontorslokaler och i butiker, fönsterpartier och dörrar.

Tillbehör
Tillbehör till fönster, dörrar och glasade produkter till Glasrikets produkter.
